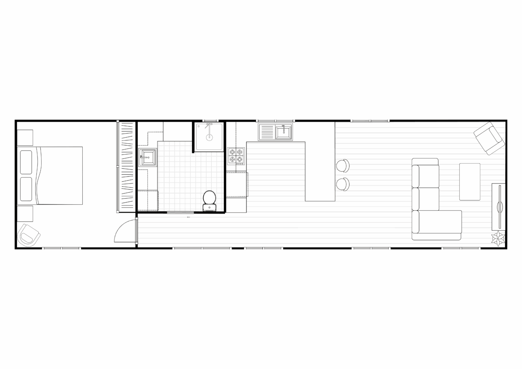
1X1 Granny Flat

The TD

1 bed
1 bath

The TD is a 47-square meter granny flat featuring an open plan living and dining area for a spacious feel. It includes a comfortable bedroom, a combined bathroom and laundry for convenience, and overhead cabinetry for additional storage.

  • Integrated Bathroom / Laundry

    A combined bathroom and laundry space.

  • area

    47sqm2

See similar plans

Contact v1

Please contact us to arrange an appointment!

This field is for validation purposes and should be left unchanged.