The TD
1X1 Granny Flat

The TD XL

1 bed
1 bath

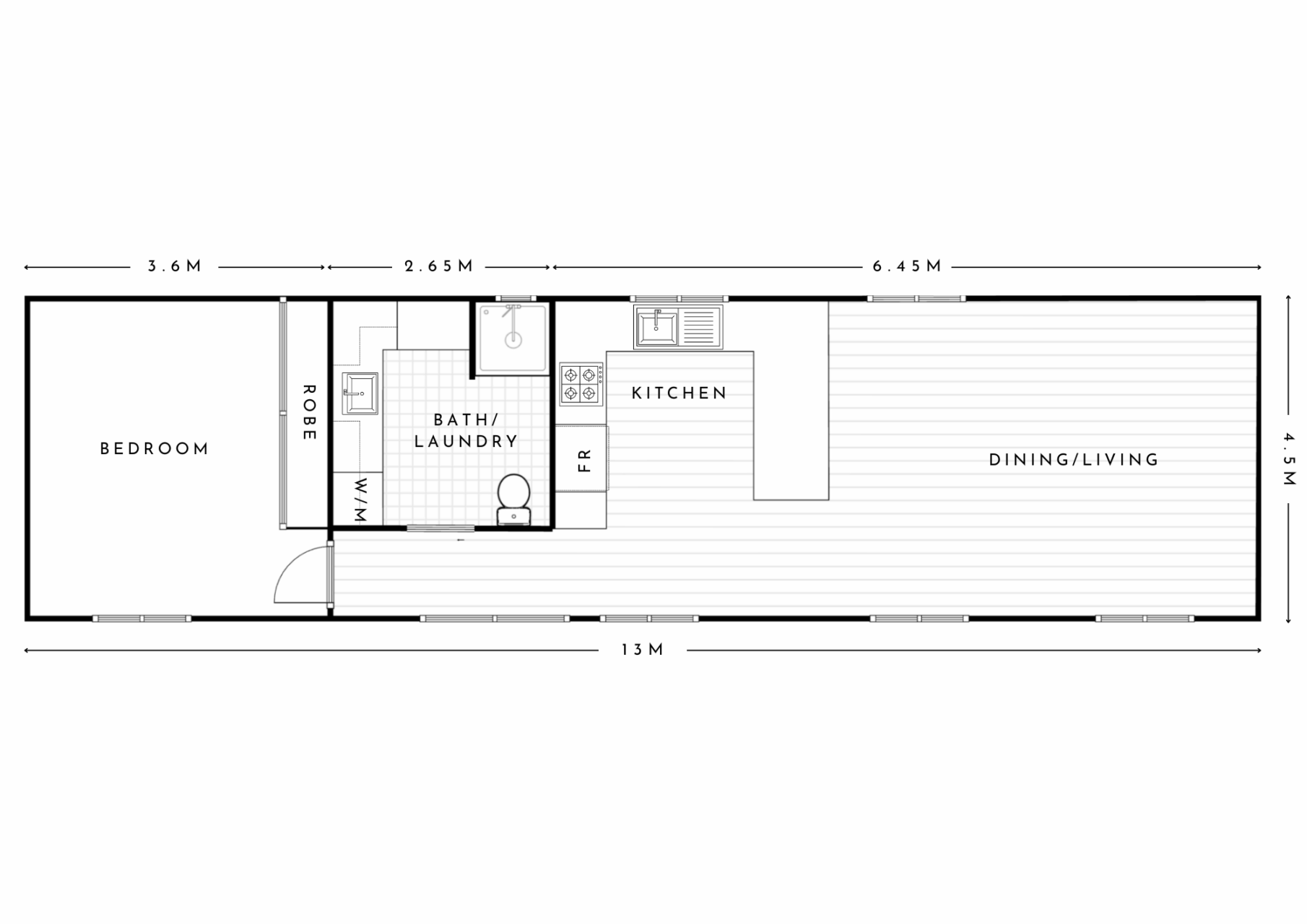
Similar to the TD Home but with more space, the TD XL is a 60-square-meter granny flat offering an open-plan living and dining area. It features a cozy bedroom with a built-in sliding wardrobe, a combined bathroom and laundry with overhead cabinetry, and a well-designed U-shaped kitchen that maximizes bench and storage space.

  • Built In Robe

    Built-in wardrobe with sliding doors.

  • Integrated Bathroom / Laundry

    A combined bathroom and laundry space.

  • area

    60sqm2

See similar plans

Contact v1

Please contact us to arrange an appointment!

This field is for validation purposes and should be left unchanged.