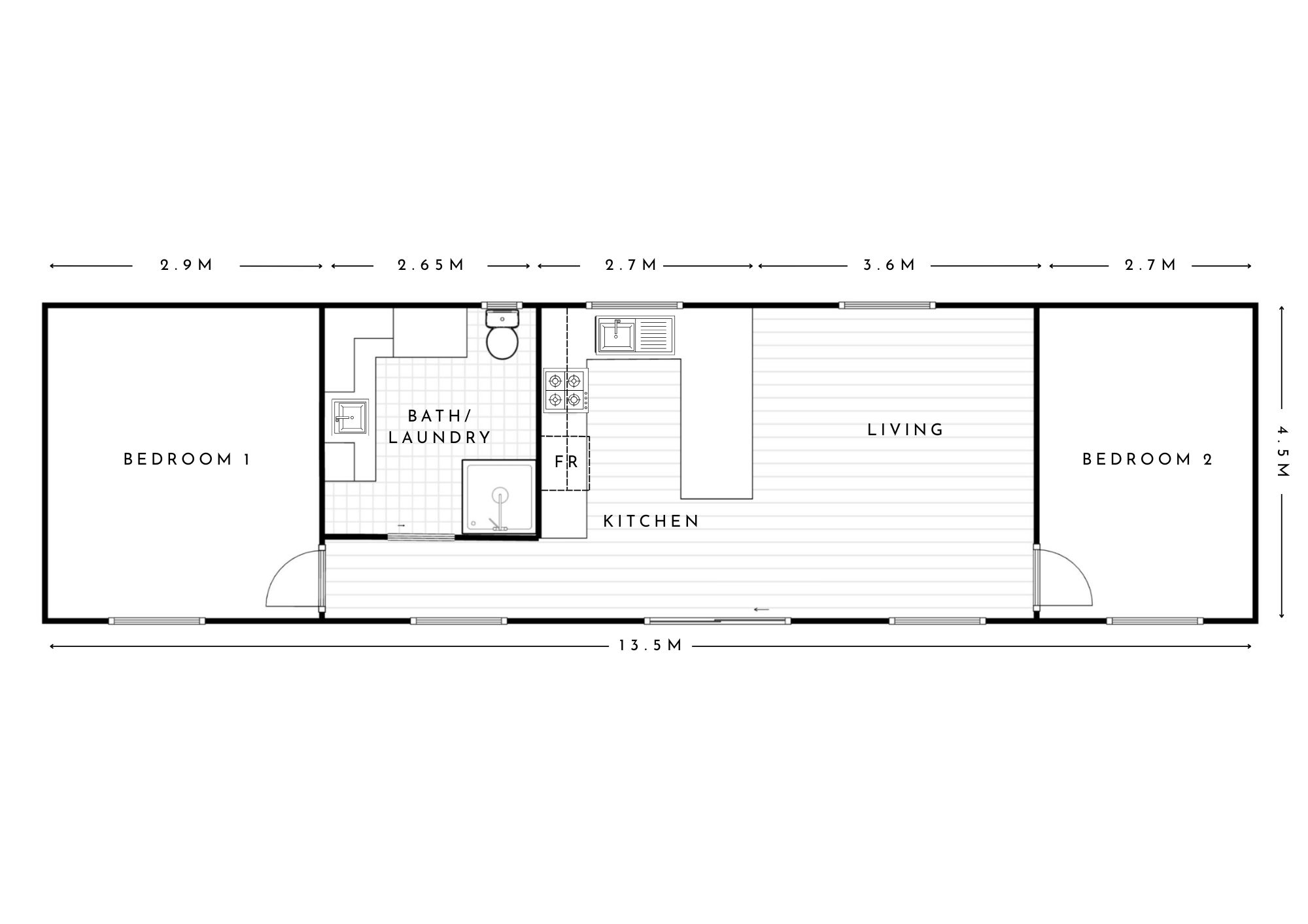
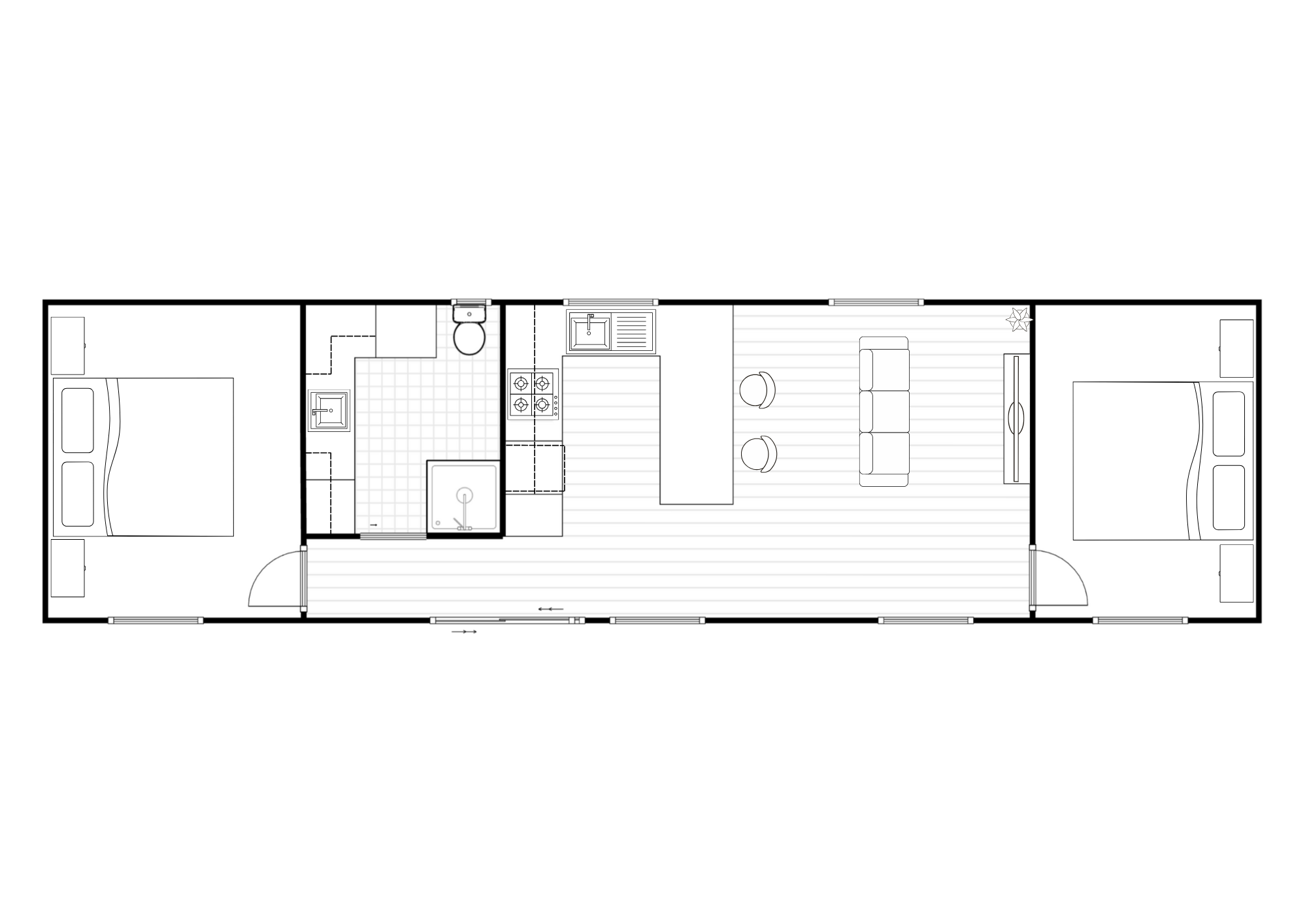
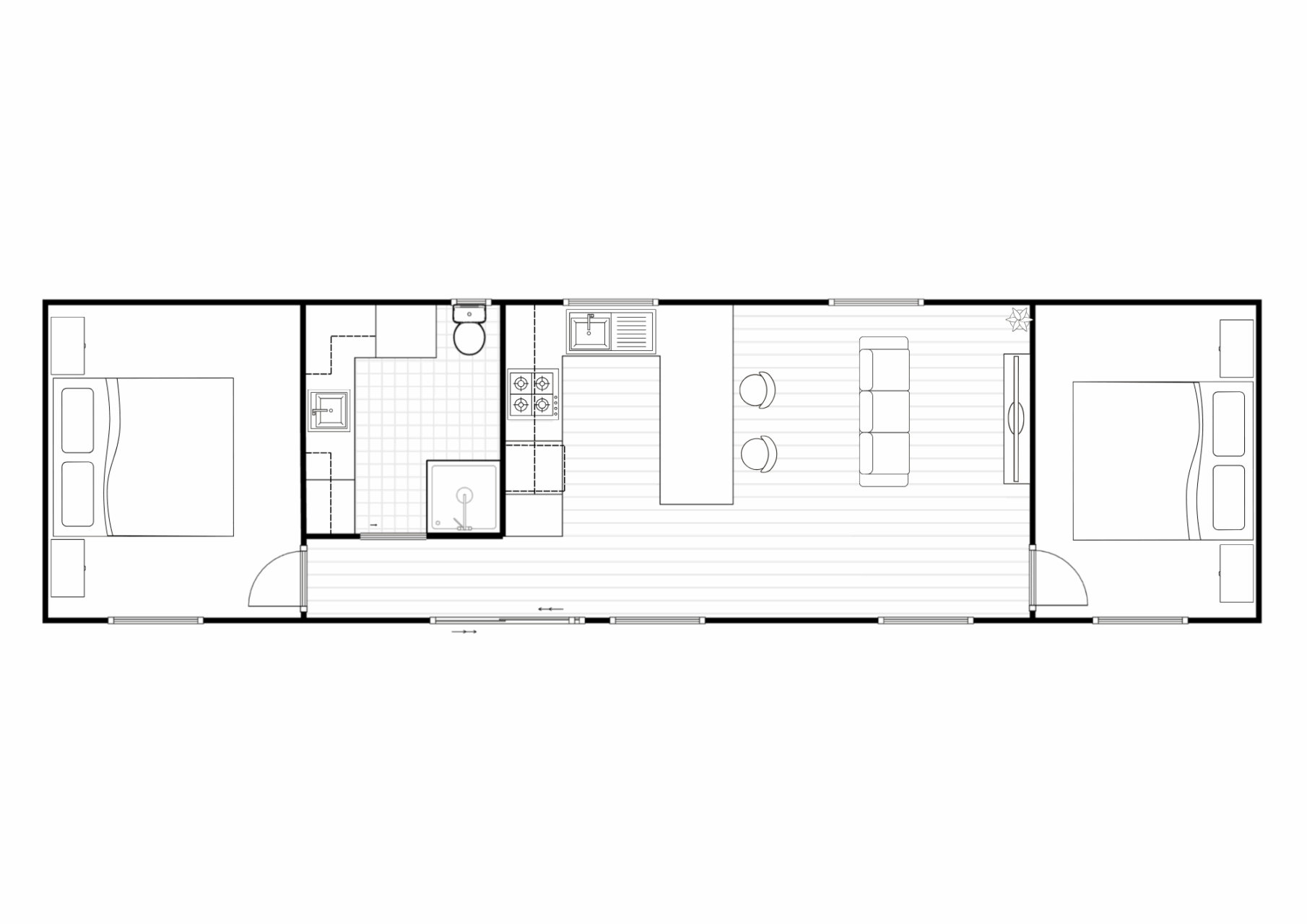
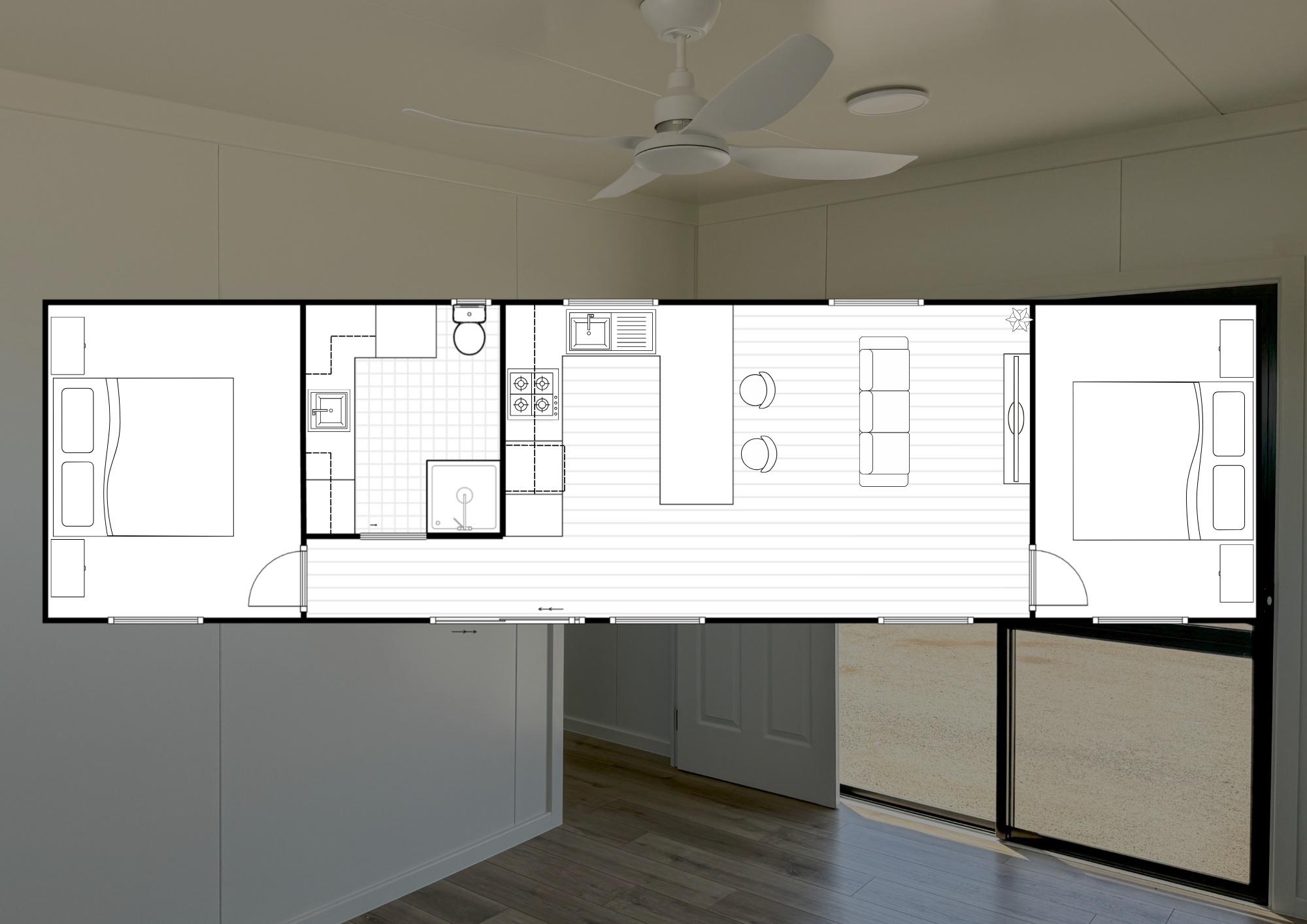
2X1 Granny Flat

The Javin

2 bed
1 bath

The Javin is a two-bedroom home featuring 60sqm of living space within a 15m x 4m building. It includes a combined bathroom and laundry for convenience, along with a U-shaped kitchen that maximizes functionality.

  • Integrated Bathroom / Laundry

    A combined bathroom and laundry space.

  • area

    60sqm2

See similar plans

Contact v1

Please contact us to arrange an appointment!

This field is for validation purposes and should be left unchanged.