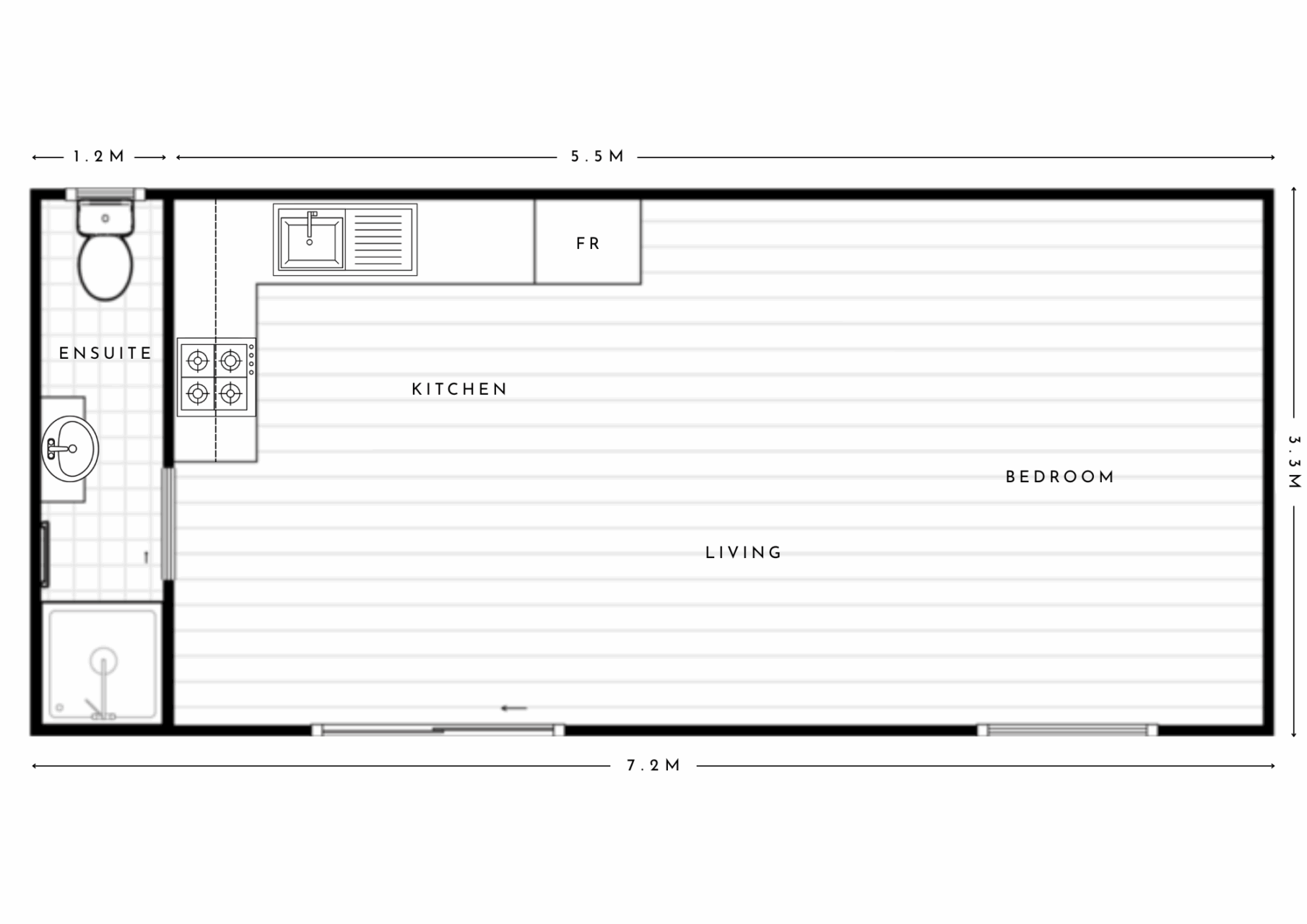
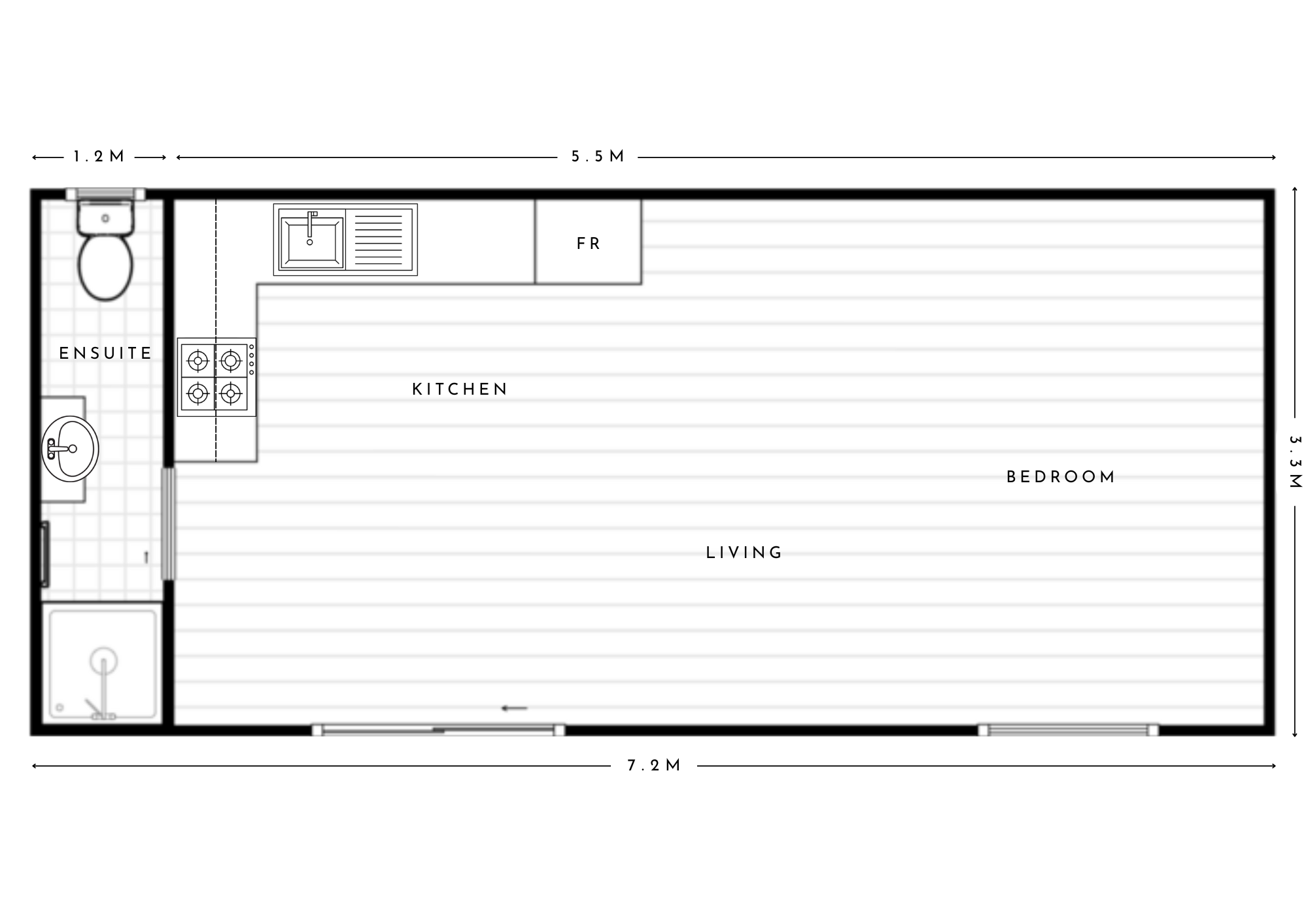
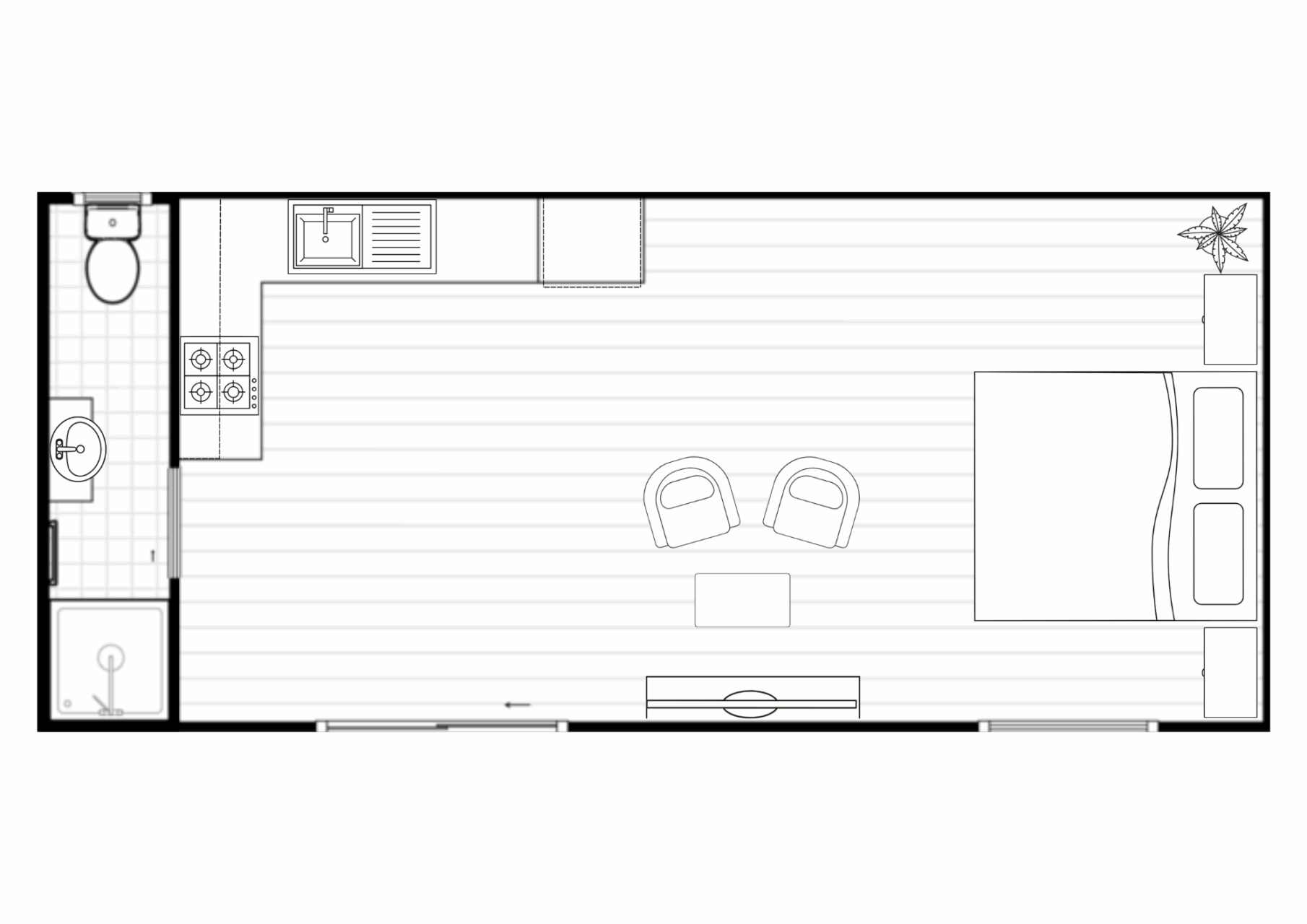
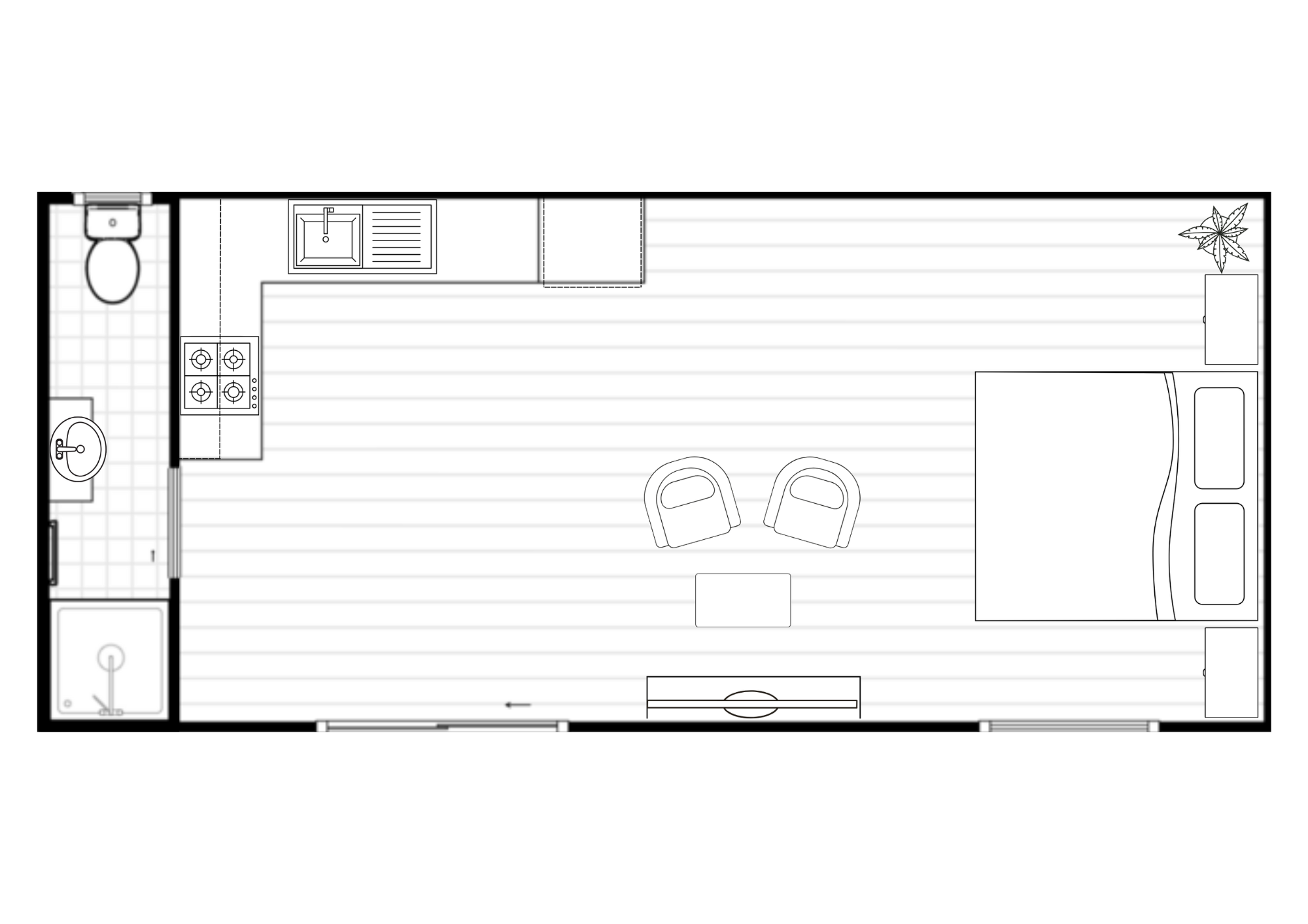
1X1 Granny Flat

The Hopeland

1 bed
1 bath

The Hopeland is a studio-style granny flat offering 23 square meters of efficient living space. It includes a functional bathroom, a minimalist kitchen, and a flexible studio-style area that serves as both the living and sleeping space, making the most of every square meter.

  • Studio

    A layout where the sleeping area is integrated with the living space.

  • area

    Less than 30m2

See similar plans

Contact v1

Please contact us to arrange an appointment!

This field is for validation purposes and should be left unchanged.