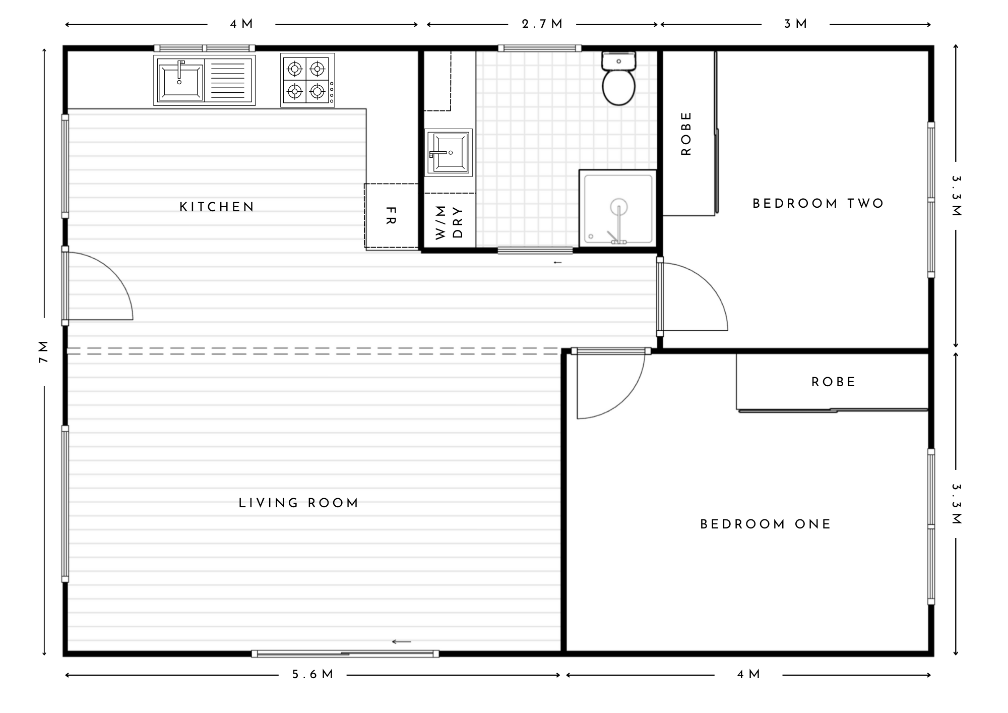
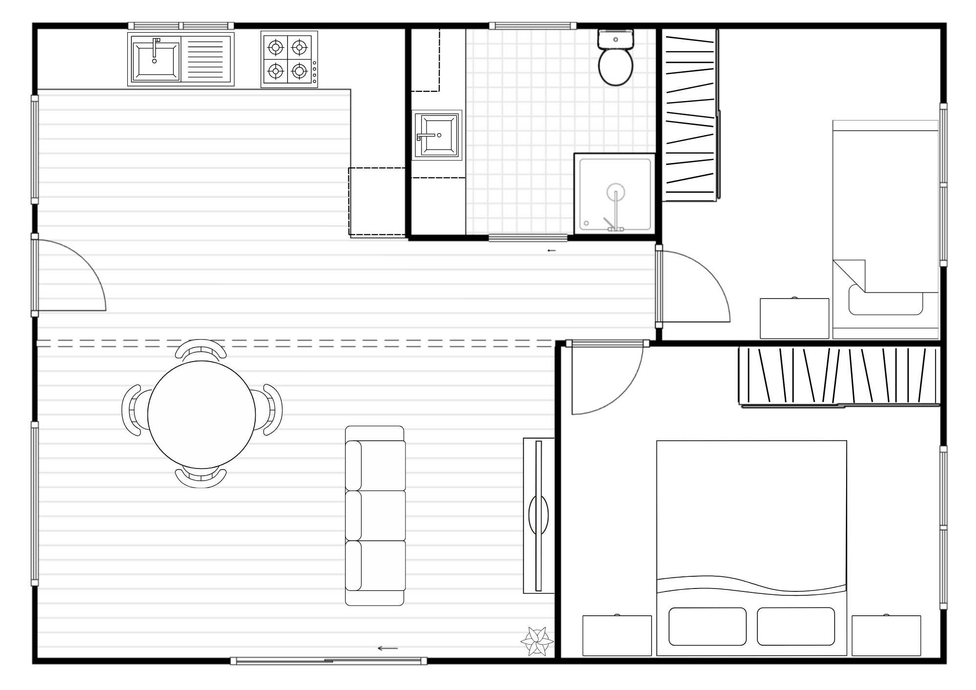
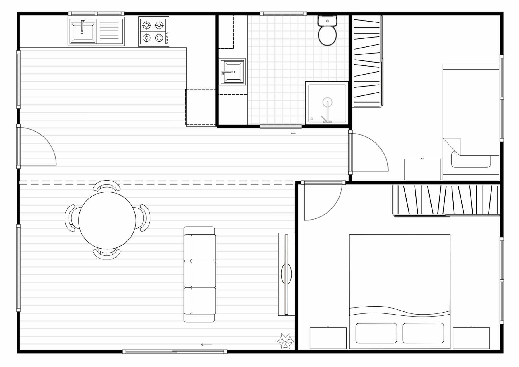
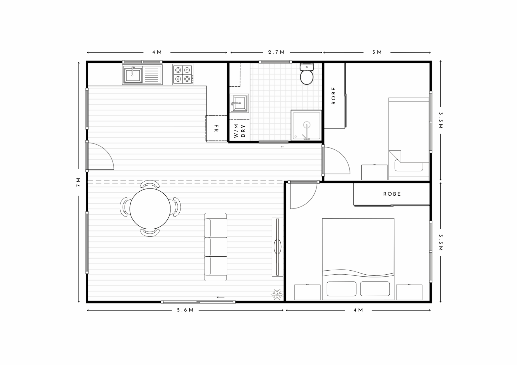
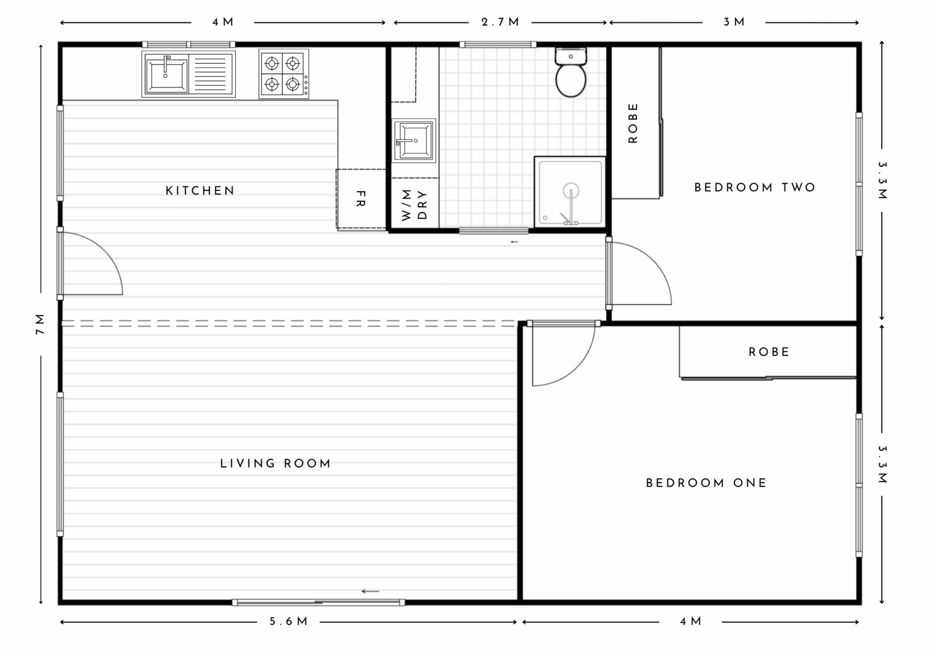
2X1 Granny Flat

The Haven

2 bed
1 bath

The Haven offers a light-filled open-plan living and dining area. The seamless kitchen design complements the layout, while each of the bedrooms include built-in robes for added storage. A combined bathroom and laundry with overhead d cabinetry adds practical convenience, making The Haven a well-balanced blend of comfort, style, and functionality.

  • Built In Robe

    Built-in wardrobe with sliding doors.

  • Integrated Bathroom / Laundry

    A combined bathroom and laundry space.

  • Living Room

    A dedicated living room.

  • area

    70sqm2

See similar plans

Contact v1

Please contact us to arrange an appointment!

This field is for validation purposes and should be left unchanged.