1X1 Granny Flat

The Cabin

1 bed
1 bath

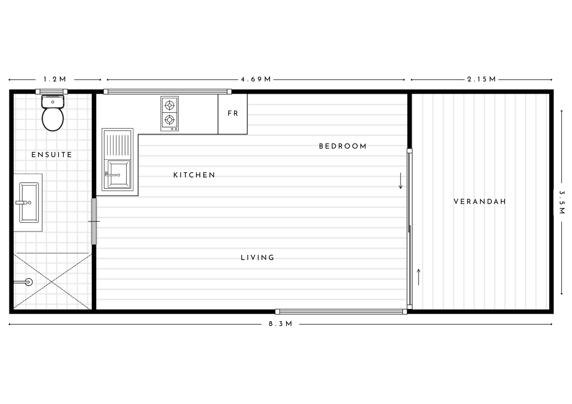
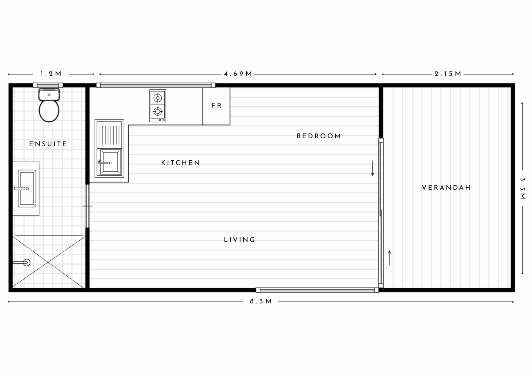
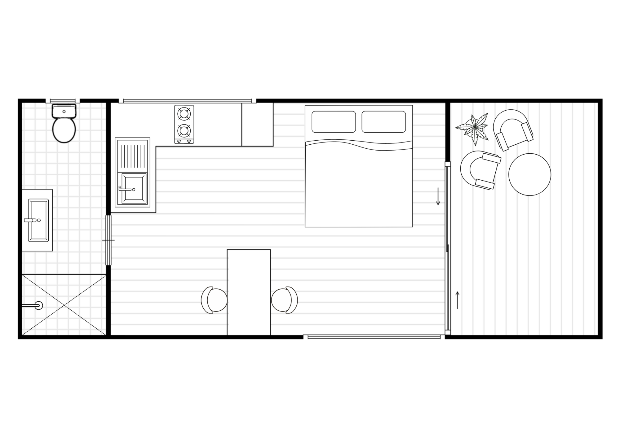
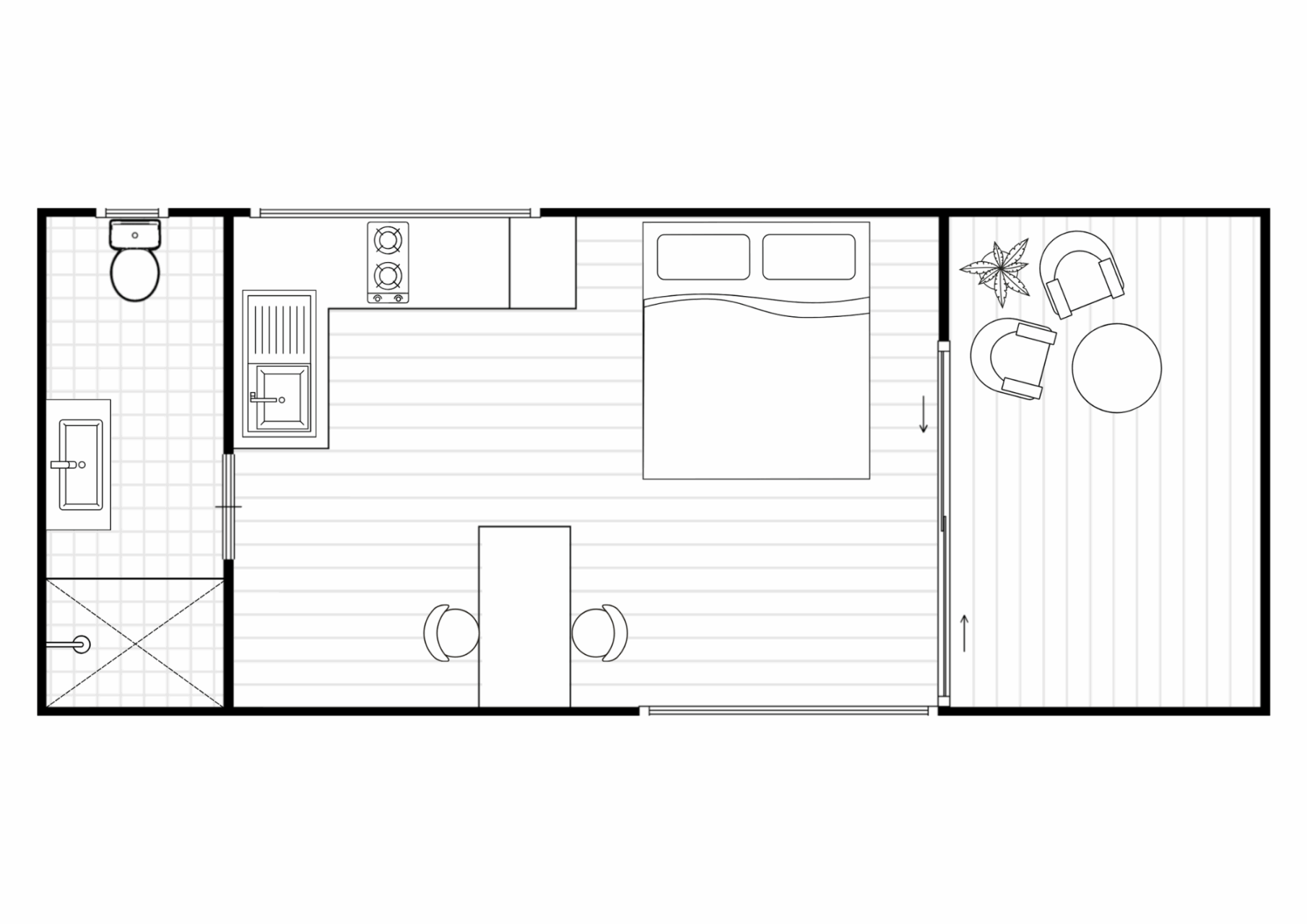
The Cabin is a studio-style granny flat offering 28.5 square meters of efficient living space, including an inviting verandah. It features a functional bathroom, a minimalist kitchen, and a versatile studio-style living area that doubles as the sleeping space, optimising every inch for comfort and practicality.

  • Studio

    A layout where the sleeping area is integrated with the living space.

  • Verandah

    Outdoor area integrated as living space.

  • area

    28.5sqm2

See similar plans

Contact v1

Please contact us to arrange an appointment!

This field is for validation purposes and should be left unchanged.