1X1 Granny Flat / Custom

Custom Project: 809

1 bed
1 bath

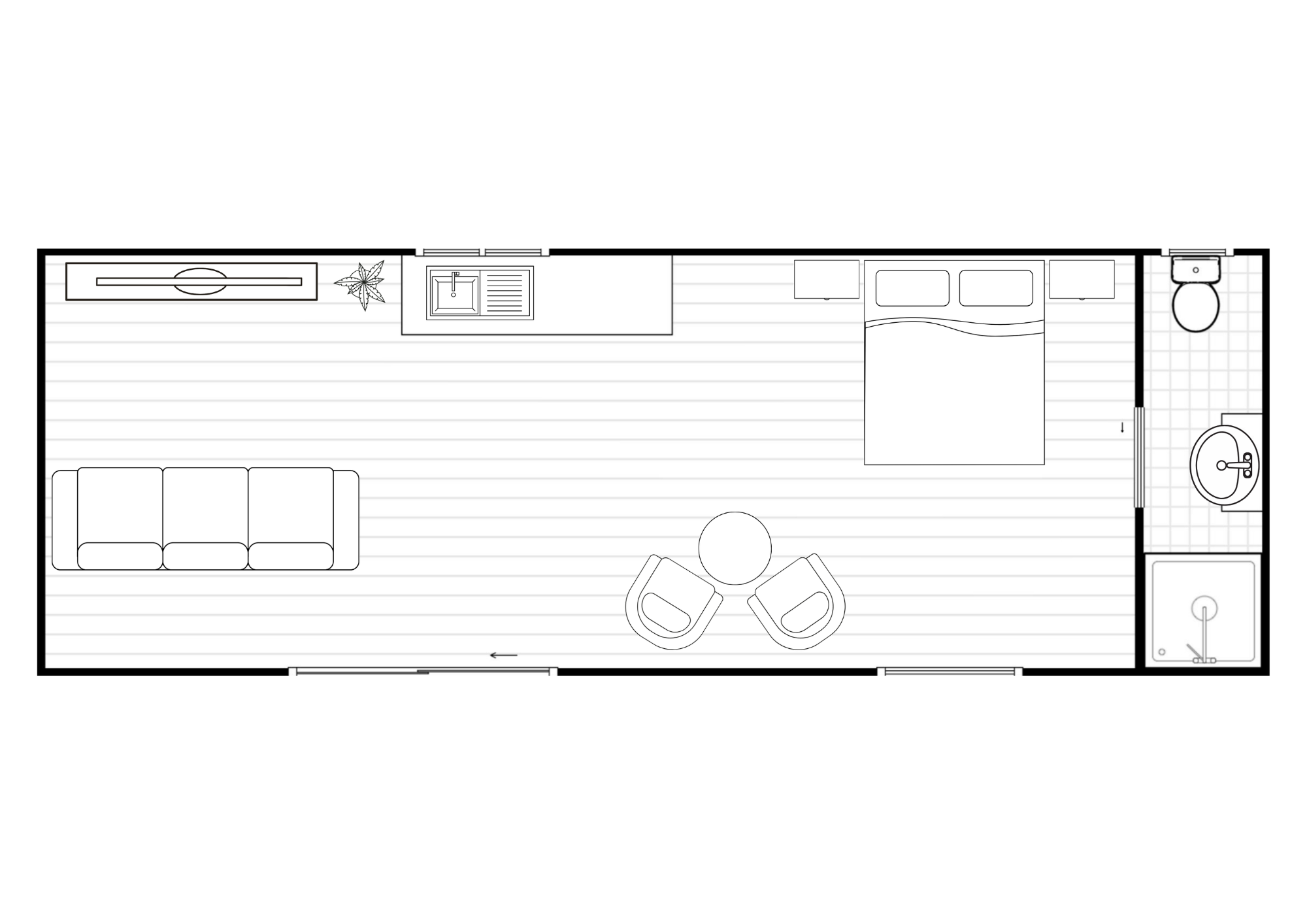
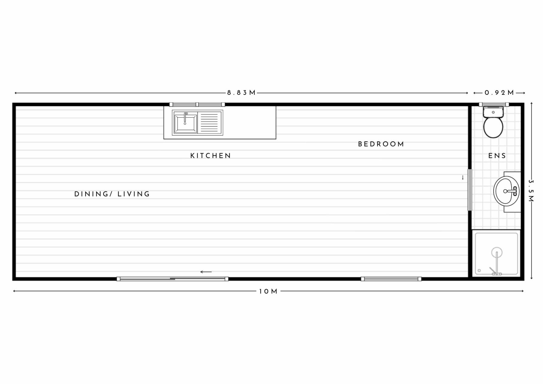
This cleverly designed 35sqm studio-style granny flat makes the most of a compact footprint, offering a functional, open-plan layout that doesn’t compromise on comfort or style. Smart spatial planning ensures every square meter is put to good use.

  • Studio

    A layout where the sleeping area is integrated with the living space.

  • area

    35sqm2

See similar plans

Contact v1

Please contact us to arrange an appointment!

This field is for validation purposes and should be left unchanged.