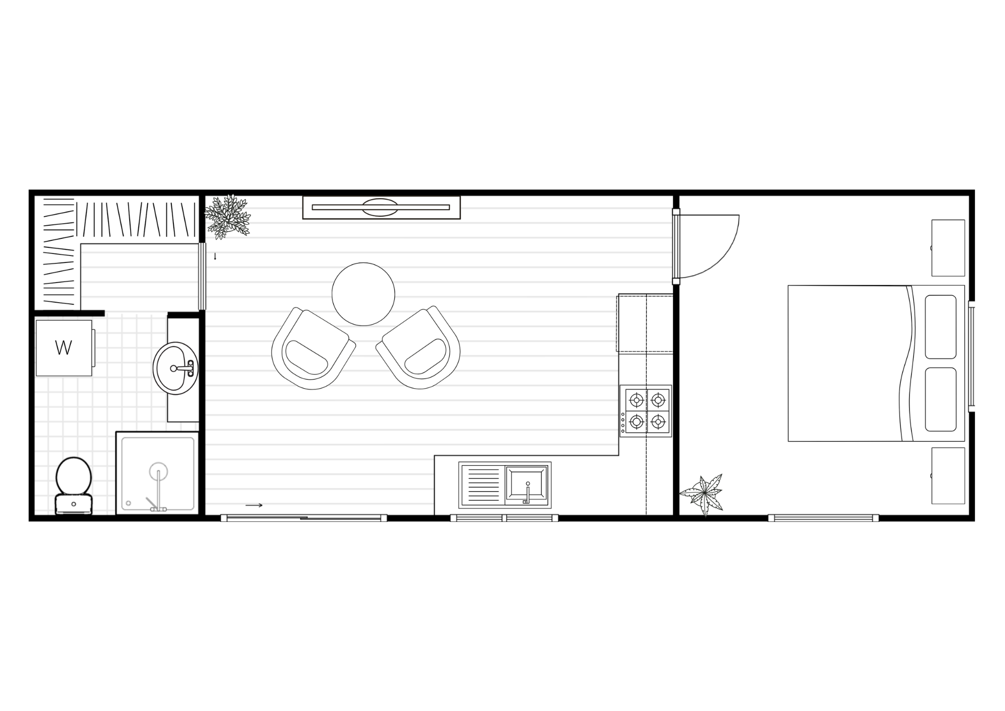
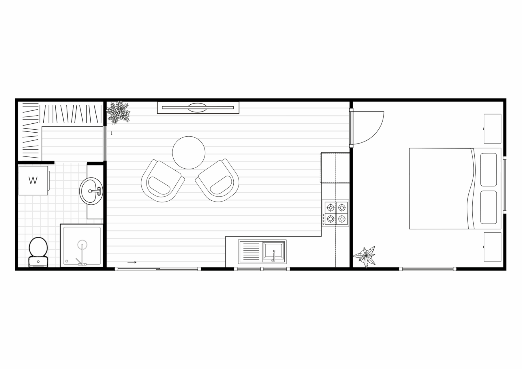
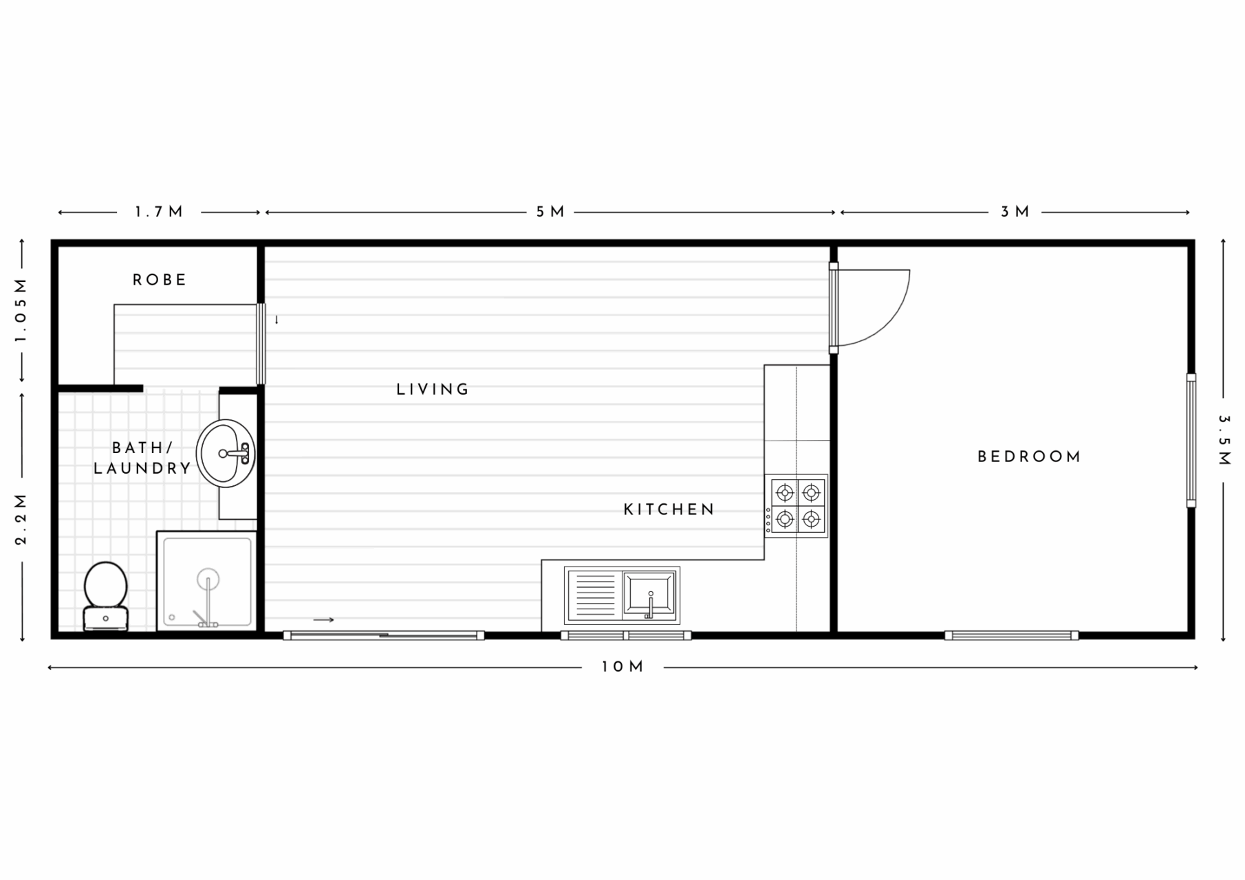
1X1 Granny Flat / Custom

Custom Project: 772

1 bed
1 bath

This custom-designed one-bedroom granny flat offers clever zoning and modern comfort in a compact 35sqm footprint. The bedroom is positioned at one end of the home for added privacy, separated by a central kitchen and living area that maximises space. On the opposite end, a walk-through robe provides added storage and flows directly into a private ensuite-style bathroom. With a layout designed to feel open yet defined, this compact granny flat is ideal for guests, extended family, or independent living.

  • Ensuite

    Bathroom directly connected to the master bedroom.

  • Walk In Robe

    A dedicated area for organised storage of clothes and accessories.

  • area

    35sqm2

See similar plans

Contact v1

Please contact us to arrange an appointment!

This field is for validation purposes and should be left unchanged.