1X1 Granny Flat

Custom Build: 599

1 bed
1 bath

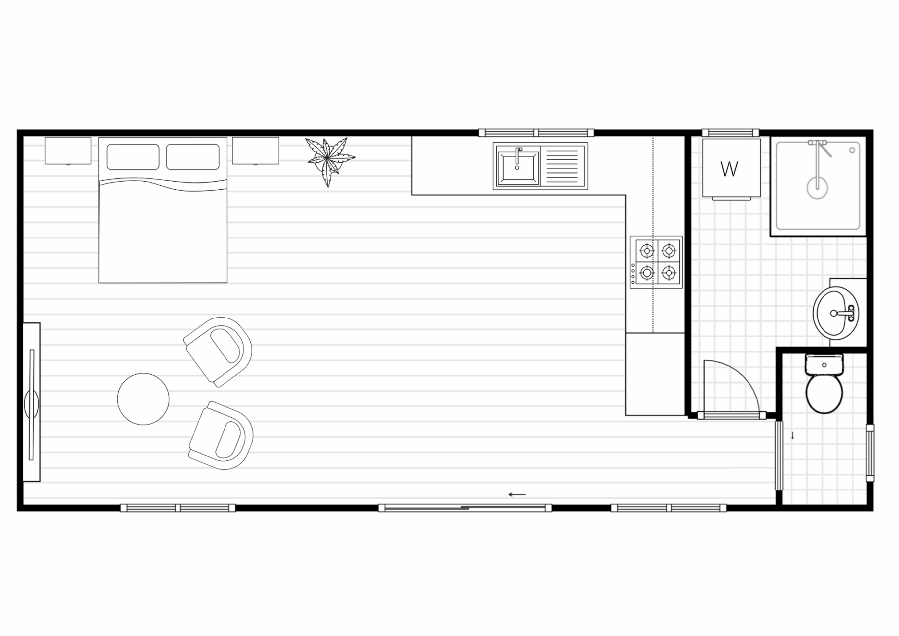
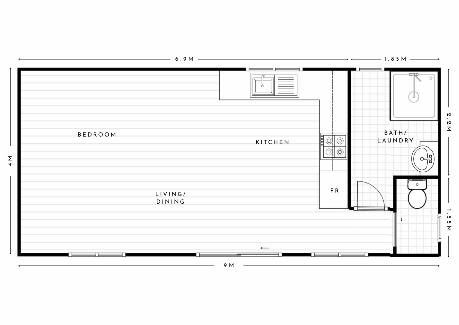
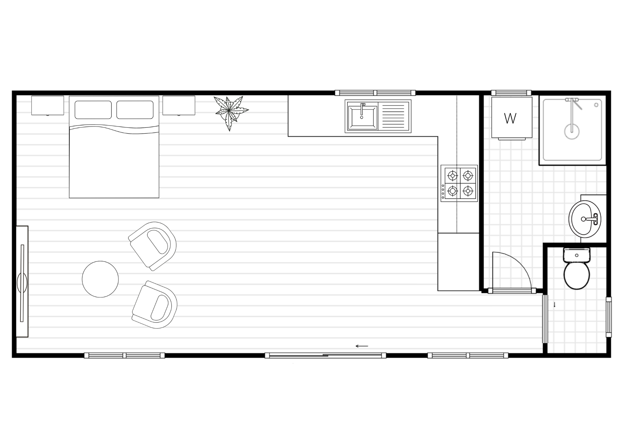
This clever studio-style design packs 36 sqm of functional living space. Alongside your standard inclusions—like overhead kitchen cabinetry—you’ll enjoy a combined bathroom/laundry plus a separate toilet with its own private entry.

  • Integrated Bathroom / Laundry

    A combined bathroom and laundry space.

  • Studio

    A layout where the sleeping area is integrated with the living space.

  • area

    36sqm2

See similar plans

Contact v1

Please contact us to arrange an appointment!

This field is for validation purposes and should be left unchanged.