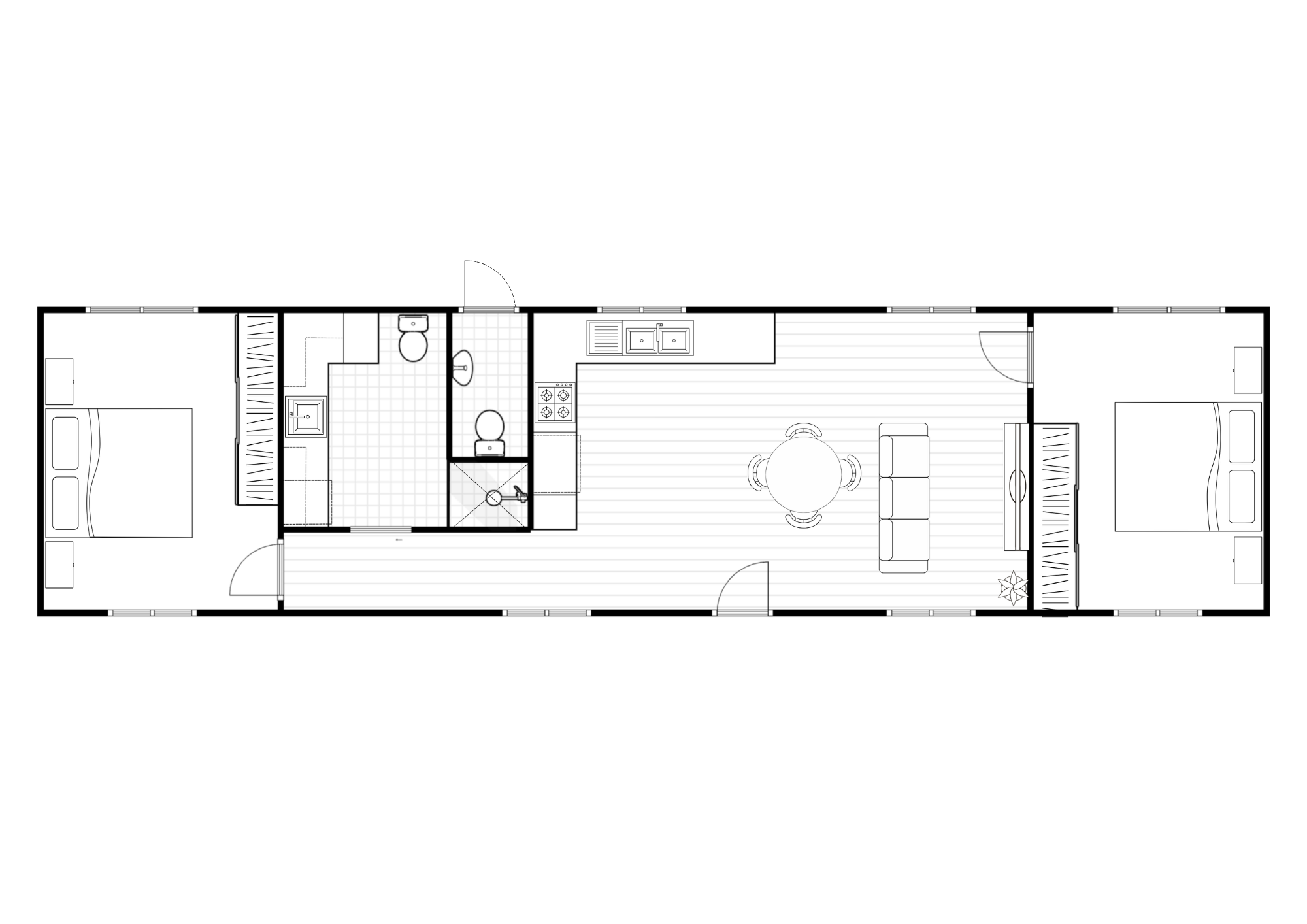
2X1.5 Custom

Custom Build 821

2 bed
1.5 bath

This beautiful custom Granny Flat is comprised of 64 square meters of living space. Featuring two bedrooms both with built in robes and additional shelving. Kitchen and combined bathroom laundry with tiled splashback feature and an additional guest toilet accessible from the outside of the property only – the perfect option for the entertainer at heart without bringing the mess inside.

  • Built In Robe

    Built-in wardrobe with sliding doors.

  • Guest Toilet

    A standalone toilet room, positioned separately from the main bathroom.

  • Integrated Bathroom / Laundry

    A combined bathroom and laundry space.

  • area

    64sqm2

See similar plans

Contact v1

Please contact us to arrange an appointment!

This field is for validation purposes and should be left unchanged.